
Neuer Apple Store in Genf: Baupläne zeigen spektakuläre Glasfassade und korrigieren Gerüchte
Wir konnten die Baupläne für den neuen Apple Store in Genf ausfindig machen und einsehen – und sie liefern erstmals konkrete Einblicke in Apples Vorhaben. Unsere Recherchen in den umfangreichen Dossiers zeigen: Der Standort an der Rue du Marché ist gesetzt – allerdings nicht im bisher spekulierten Gebäude. Der Bau läuft bereits, und die geplante Glasfassade fällt deutlich spektakulärer aus als jene des neuen Zürcher Stores.
Publireportage für CHF 420.– Werbung auf macprime
Durch über 230 Genfer Dokumente und Dossiers haben wir uns gearbeitet – und dabei gleich mehrere Details bestätigt. Zuerst das Wichtigste: Apple plant tatsächlich einen neuen Retail-Store in Genf. Entsprechendes wurde in einem Bericht eines Immobilienspezialisten spekuliert – diese Gerüchte können wir nun bestätigen.
Der neue Apple Store entsteht an der Rue du Marché in Genf – allerdings nicht, wie im Bericht erwähnt, an der Hausnummer 2. Stattdessen zieht er in die bisher von drei unterschiedlichen Läden belegten Nummern 4, 8 und 10.
Langwieriger Bewilligungsprozess über das ganze Jahr 2025
Die grosse Zahl an Dossiers erklärt sich auch dadurch, dass der Weg zur Baubewilligung nicht reibungslos verlief. Vom ersten Entwurf im Januar 2025 bis zur letzten Projektänderung im Dezember 2025 – während des jetzt bereits laufenden Baus – durchlief das Projekt verschiedene Behörden, und es waren teils mehrere Nachbesserungsrunden nötig.
Mehr solche Stories möglich machen?
Unterstütze unser Tun mit dem Abschluss eines freiwilligen Gönner-Abos 🚀 oder mit einer Einzel-Spende.
macprime unterstützen
Eine erste Baubewilligung erhielt das Vorhaben am 10. Juni 2025, eine zweite – eine Ergänzungsbewilligung – am 10. November 2025.
Ein Grund für die Verzögerung war das Design der Eingangstüren des neuen Apple-Stores. Die Türen waren ursprünglich so konzipiert, dass sie nach aussen – also auf den öffentlichen Gehweg – ausschlagen. Daran störte sich die Stadtplanung und verlangte eine entsprechende Änderung. In der Folge wurden die Eingänge des künftigen Apple-Stores mit Schiebetüren geplant. So wurde das Baugesuch denn im vergangenen Juni auch bewilligt.
Im Herbst 2025 kam es jedoch erneut zu Änderungen: Die bewilligten Schiebetüren wurden durch nach innen öffnende Drehtüren ersetzt. Dies hatte Auswirkungen auf den Brandschutz, da sich die Fluchtwegsituation veränderte. Entsprechend wurden zusätzliche Notausgänge eingeplant und das Brandschutzkonzept mehrfach überarbeitet. Als Konsequenz wurde die Hauptverkaufsfläche im Erdgeschoss leicht verkleinert. Im November 2025 erfolgte schliesslich die zweite Bewilligung.
Aus drei Läden wird ein Apple Store
Im 2015 vollständig abgerissenen und neu errichteten, neunstöckigen Gebäude an der Genfer Rue du Marché 4, 8 und 10 – rückseitig zur Rue de la Rôtisserie als Nummern 3 und 5 (Ebenerdig im 1. OG) – waren in den unteren beiden Stockwerken bislang mehrere Kleiderläden eingemietet, darunter «United Colors of Benetton» und «Mango».
In den oberen Stockwerken befindet sich mit den «Fraser Suites» ein Apartment-Hotel; dessen Eingang liegt an der Rue de la Rôtisserie (Ebenerdig im 1. OG).
Eigentümer des Gebäudes ist «Casacuberta», das für den neuen Apple Store zuständige Architekturbüro «TJCA».
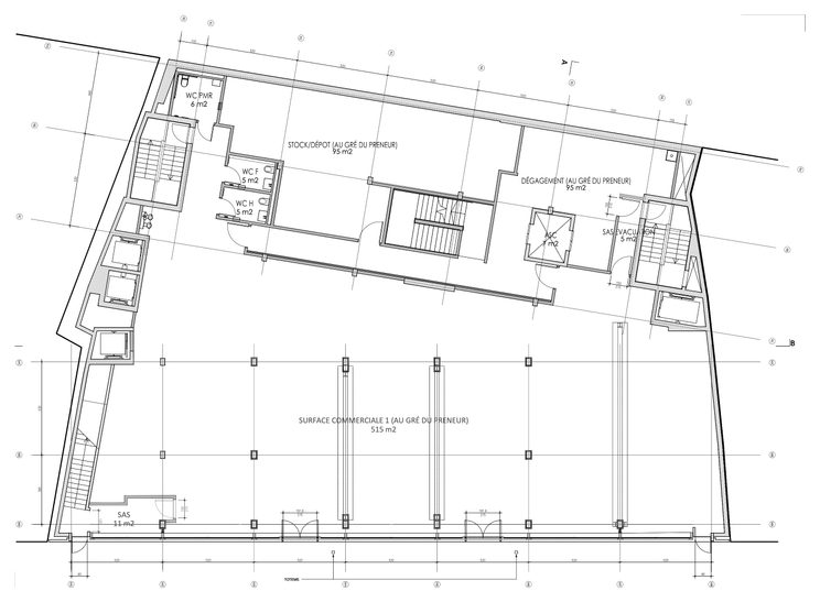
Die drei bisherigen Ladenflächen über drei Ebenen – 1. Untergeschoss (1er Sous-sol), Erdgeschoss (Rez inférieur) und 1. Obergeschoss (Rez supérieur) – werden zu zusammenhängenden Flächen von jeweils rund 850 Quadratmetern zusammengeführt. Aus drei wird eins – aus drei Läden ein Apple Store. Die Bruttogeschossfläche beträgt gemäss Baugesuch rund 1476 Quadratmeter.
In den Unterlagen ist von Baukosten beziehungsweise einem Investitionsvolumen von rund 4 Millionen Franken die Rede.
Fassade mit kolossalen Glaspaneelen
Das auffälligste Element des Projekts ist die neue Glasfassade zur Rue du Marché – und sie ist zugleich ein weiterer Hinweis auf den künftigen Mieter Apple. Es handelt sich um eine Konstruktion aus Dreifachverglasung mit Stahlrahmen, geplant von «Eckersley O’Callaghan».
Das renommierte Londoner Ingenieurbüro hat zahlreiche der spektakulärsten Glasbauten von Apple weltweit realisiert – darunter den ikonischen Glaswürfel an der Fifth Avenue in New York, die Glaskugel in Singapur, Installationen im «Apple Louvre» in Paris, den Glas-Wasserfall beim Mailänder «Apple Piazza Liberty» sowie die grossflächigen Glasfassaden im Apple Park in Cupertino.
Egal, wo: Wenn in einem Apple-Store grössere Glaskonstruktionen zu sehen sind, ist die Wahrscheinlichkeit gross, dass diese von Eckersley O’Callaghan stammen.
Ausgeführt werden die Glasarbeiten vom spanischen Fassadenspezialisten «Bellapart», der bereits bei mehreren Apple-Stores beteiligt war.
Von den insgesamt 26 grossen Glasscheiben der neuen Fassade in Genf weisen die vier grössten laut Bauplan beeindruckende Abmessungen von rund 2 × 6.8 Metern auf und wiegen jeweils etwa 1.4 Tonnen. Hier werden auch die Apple-Logos angebracht.
Ergänzt wird die Verglasung von Metallpaneelen, die horizontal über die Fassade laufen. Die Paneele sind in einem warmgrauen Braun-Ton gehalten – konkret «RAL 080 40 05».
Die gesamte Glasfläche (198 m²) und Metallfläche (36 m²) ergibt zusammen eine Fassade von rund 234 Quadratmeter.
Bestehen bleibt das bisherige Vordach (Marquise) zwischen erstem und zweitem Obergeschoss.
Ein oder zwei Stockwerke?
Den Bauunterlagen ist nicht eindeutig zu entnehmen, ob sich die Verkaufsfläche über ein oder zwei Stockwerke erstreckt. Wie bereits beim geplanten Zürcher Store dürfte es sich auch in Genf nicht um einen «doppelhohen» Raum handeln. Also nicht so, wie es die Visualisierungen der Prime Location Group zeigt, um einen Raum, der sich über beide Geschosse erstreckt.
Die Baupläne zeigen klar voneinander getrennte Ebenen mit eigenen Grundrissen, Bezeichnungen und Flächenangaben. Es handelt sich somit um zwei separate Verkaufsgeschosse plus ein Untergeschoss – nicht um einen durchgehenden Raum über zwei Ebenen.
Noch klarer macht dies der einzige Hinweis in den Dokumenten auf eine «doppelte Höhe»: Die grossen Verglasungs-Paneele an den Seiten des Gebäudes reichen über beide Erdgeschossebenen (Rez Inférieur / EG und Rez Supérieur / 1. OG). Das betrifft jedoch nur die äussere Schaufensterfront – nicht aber die innere Raumstruktur des Stores, was auf den Plänen mit dem Durchscheinen des OG-Bodens auch ersichtlich ist (siehe Abbildung weiter oben).
Unklar bleibt, ob das erste Obergeschoss tatsächlich Verkaufsflächen enthalten wird. Anders als in Zürich fehlen in den Genfer Plänen konkrete Hinweise auf «Sales» (EG) und «Backstage» (OG). Nach aktuellem Stand ist daher davon auszugehen, dass sich im Genfer «Rez Supérieur» vor allem Büros und Lagerflächen befinden werden.
Eröffnung Ende 2026 oder erst 2027
Gemäss Baugesuch war der Baubeginn auf den 3. November 2025 angesetzt. Für die Bauarbeiten wurden 240 Tage eingeplant – bis zum 30. Juni 2026. Baustellen-Eröffnungs-Meldungen zufolge begannen Rückbau und Demontage der bestehenden Ladenflächen bereits im November und Dezember 2025.
Für die Bauarbeiten wurde das Gebäude umfassend abgesperrt; zudem mussten vier Strassenlaternen demontiert werden.
Apple hat in den vergangenen Jahren weltweit zahlreiche Stores modernisiert und setzt dabei auf ein sogenanntes «Town Square»-Design mit Glasfassaden, Bäumen im Store, grossflächigen Deckenleuchten, einem «Forum» mit grossem Bildschirm an der Wand. Ob dieses Konzept auch an den beiden neuen Standorten an der Zürcher Lintheschergasse und an der Genfer Rue du Marché umgesetzt wird, ist derzeit unklar. Apple äussert sich traditionell nicht zu neuen Store-Projekten vor deren offizieller Ankündigung. Womöglich folgen auch noch gesonderte Baugesuche für den Innenausbau der neuen Stores.
Ein Einzug von Apple wäre in Genf gemäss Bauzeit frühestens im Sommer 2026 möglich – vorausgesetzt, alles verläuft planmässig. Es ist daher gut denkbar, dass der neue Apple Store in Genf erst Ende 2026 oder – wie der neue Apple-Store in Zürich – sogar erst im Verlauf des Jahres 2027 eröffnet.
Gefiel dir diese Story?
Wir benötigen deine Unterstützung! Unterstütze macprime mit einem freiwilligen Gönner-Abo 🚀 und mache die Zukunft unseres unabhängigen Apple-Mediums aus der Schweiz mit möglich.
macprime unterstützen
Ab CHF 5.– im Monat
👉🏼 Wir benötigen deine Unterstützung! Unterstütze macprime mit einem freiwilligen Gönner-Abo und mache die Zukunft unseres unabhängigen Apple-Mediums aus der Schweiz mit möglich.
Kommentare
Anmelden um neue Kommentare zu verfassen
Allegra Leser! Nur angemeldete Nutzer können bei diesem Inhalt Kommentare hinterlassen. Jetzt kostenlos registrieren oder mit bestehendem Benutzerprofil anmelden.