
Bauplan: Neuer Apple Store in Zürich – Fassade, Fläche & Eröffnung 2027
Fassaden-Sanierung geplant für Lintheschergasse 7
Für den geplanten neuen Zürcher Apple Store liegt in der Stadt ein Baugesuch vor. Die Unterlagen zeigen Details zur geplanten Fassaden-Sanierung am Gebäude an der Lintheschergasse 7 – und geben Hinweise auf Grösse und Aufbau des künftigen Stores.
Publireportage für CHF 420.– Werbung auf macprime
Vergangene Woche ist bekannt geworden, dass Apple in der Schweiz zwei neue Retail-Stores plant. Neben einem neuen Store in Genf soll es auch in Zürich einen neuen, grösseren Apple Store geben – unweit des früheren Bahnhofstrasse-Stores (im «Nörrhaus»; Nummer 77), soll der neue Store an der Kreuzung Lintheschergasse und der mit Tram-Gleisen bestückten Usteristrasse, neben dem «Globus» und dem «Brannhof»-Gebäude, gleich an der Pestalozzianlage zu stehen kommen. Erste Hinweise auf die möglichen neuen Apple-Stores lieferte ein Report eines Immobilienspezialisten.
Die bisherigen Gerüchte bestätigen jetzt ein Baugesuch in der Stadt Zürich. In den Dokumenten ist wörtlich von einer «Bahnhofstrasse Relocation» die Sprache – inklusive Apples interner Nummer «R159» für den Stadt-Zürcher Apple-Store. Damit wird ein erneuter Umzug des Zürcher Apple-Stores konkret.
Apple eröffnete seinen ersten Zürcher Store im Mai 2009 an der Bahnhofstrasse 77 im «Nörrhaus». 2019 musste das Unternehmen an den Rennweg 43 umziehen. Mit dem geplanten neuen Standort an der Lintheschergasse wird Apple seinen Zürcher Store nun ein weiteres Mal verlegen.
Wie gross der neue Store tatsächlich ausfallen wird, ist allerdings noch offen.
Mehr solche Stories möglich machen?
Unterstütze unser Tun mit dem Abschluss eines freiwilligen Gönner-Abos 🚀 oder mit einer Einzel-Spende.
macprime unterstützen
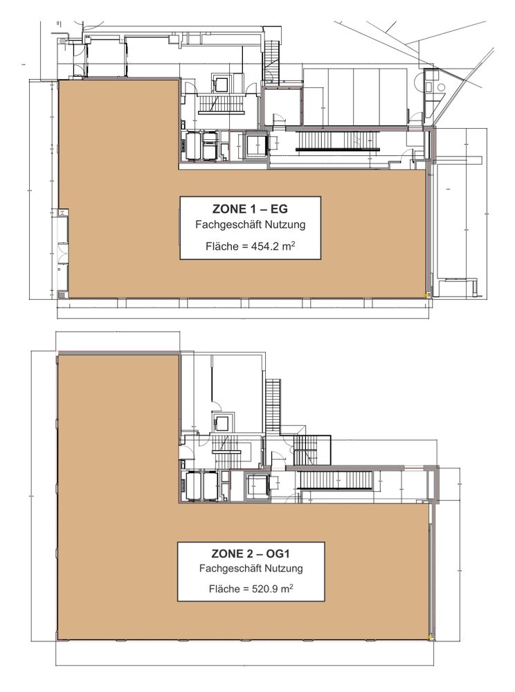
Ein oder zwei Stockwerke?
Ob sich der Store tatsächlich über zwei Stockwerke erstrecken wird, ist noch unklar. Dem Baugesuch ist nicht eindeutig zu entnehmen, ob sich der neue Zürcher Apple-Store – wie in Visualisierungen der Prime Location Group gezeigt – über beide Geschosse erstrecken wird. Vielmehr zeigen die Baupläne weiterhin zwei getrennte Stockwerke. Beschrieben wird das Erdgeschoss als «Sales», das erste Obergeschoss wird als «Backstage» bezeichnet – umfasst also vermutlich Büroräume.
Bewahrheitet sich dies, beläuft sich die Verkaufsfläche im Erdgeschoss auf rund 454 Quadratmeter – etwa gleich viel wie im bisherigen Store am Rennweg.
Der Store im ehemaligen «Franz Karl Weber»-Gebäude am Rennweg ist zwar über 1000 Quadratmeter gross, aber auch da gibt es Büros und Lagerflächen. Gleichzeitig ist der neue Store wohl etwas grösser als der ehemalige im «Nörrhaus» an der Bahnhofstrasse mit seinen gut 400 Quadratmetern.
Massiv grösser wäre der neue Lintheschergasse-Store, wenn das Obergeschoss ebenfalls als Verkaufsfläche genutzt wird. Dieser Raum ist gemäss Baugesuch knapp 521 Quadratmeter gross.
Ebenfalls zum Ladengeschäft gehört ein Untergeschoss, wo es vermutlich Lagerflächen geben wird.
Bauplan beschreibt Fassaden-Sanierung
Gemäss dem im Februar bei der Stadt Zürich eingereichten Baugesuch ist ein «Fassadenersatz im EG und 1. OG und Vergrössern der EG-Nutzfläche im Eingangsbereich» geplant. Eine Modernisierung mit «energetischer und sicherheitstechnischer Ertüchtigung» der Fassaden.
Die in der Beschreibung genannte «Vergrösserung der Nutzfläche» kommt durch die Fassaden-Neugestaltung zustande – neu gibt es keinen nach innen versetzten Eingang mehr in der Gebäude-Ecke, sondern der Raum reicht neu bis zur Fassadenflucht des Gebäudes. Vergrössert wird das Geschäft denn auch nur um 11 Quadratmeter, von 954 auf neu 965 Quadratmeter. Der Eingang bleibt in diesem Gebäude-Eck bestehen, zeigt aber neu nach Osten zur Lintheschergasse.
Da es sich beim Gebäude an der Lintheschergasse 7 um ein kommunal denkmalgeschütztes Objekt handelt, darf am allgemeinen Erscheinungsbild nicht viel verändert werden. Die Betonverkleidung der Pfeiler bleibt denn auch wie gehabt in der Farbe der oberen Ebenen bestehen. Zwischen den Schaufenstern der beiden Geschosse gibt es neu Metallplatten – in der Farbe «Aluminium Champagner»; ebenso die Fensterrahmen.
Eröffnung erst im Sommer 2027?
Spannend ist auch, dass im «Swiss Retail Report» für den neuen Zürcher Apple-Store eine Eröffnung gegen Ende 2026 erwartet wurde, während im Baugesuch von einer Baudauer von Anfang November 2026 bis Anfang Mai 2027 die Rede ist. Es dürfte also womöglich Sommer 2027 werden, bis der neue Apple Store in Zürich eröffnet. Es wäre dies 18 Jahre nach der grossen Eröffnung an der Bahnhofstrasse und erst 8 Jahre nach dem Umzug an den Rennweg.
Für das Projekt verantwortlich ist das Architektur-Büro «Zettelwerk» aus Winterthur. Die Bauherrschaft trägt die «Hardturm AG», der das Gebäude gehört.
Zuletzt wurde das Geschäft übrigens 2011 für das damalige Luzerner Modehaus «Schild» umgebaut. Aktuell laufen an der Adresse seit vergangenem Herbst bereits Bauarbeiten. In den fünf Stockwerken über dem künftigen Apple-Store befinden sich frisch renovierte Büros.
Bei der Stadt Zürich wurde das neue Baugesuch am 2. Februar eingereicht (ergänzt am 18. Februar). Das Baugesuch liegt seit Ende vorletzter Woche und noch bis am 26. März zur Einsicht und für allfällige Einsprachen bei der Stadt auf.
Neuer Store mit «Town Square»-Design?
Apple betreibt derzeit vier Retail-Stores in der Schweiz – zwei in Zürich sowie je einen in Basel und Genf. Auch in Genf soll es, wie letzte Woche ebenfalls bekannt wurde, einen neuen grossen Store geben.
In den letzten Jahren hat das Unternehmen seine Filialen weltweit modernisiert und setzt dabei auf ein sogenanntes «Town Square»-Design mit Glasfassaden, Bäumen im Store, grossflächigen Decken-Leuchten, einem «Forum», grossen Bildschirmen an den Wänden und mehr. Ob der neue Standort an der Lintheschergasse ebenfalls diesem Konzept folgen wird, ist derzeit noch unklar. Apple äussert sich traditionell nicht zu neuen Store-Projekten, bevor diese offiziell angekündigt werden.
Gefiel dir diese Story?
Wir benötigen deine Unterstützung! Unterstütze macprime mit einem freiwilligen Gönner-Abo 🚀 und mache die Zukunft unseres unabhängigen Apple-Mediums aus der Schweiz mit möglich.
macprime unterstützen
Ab CHF 5.– im Monat
👉🏼 Wir benötigen deine Unterstützung! Unterstütze macprime mit einem freiwilligen Gönner-Abo und mache die Zukunft unseres unabhängigen Apple-Mediums aus der Schweiz mit möglich.
2 Kommentare
Kommentar von MoonKnight99
Kommentar von Gaia
Anmelden um neue Kommentare zu verfassen
Allegra Leser! Nur angemeldete Nutzer können bei diesem Inhalt Kommentare hinterlassen. Jetzt kostenlos registrieren oder mit bestehendem Benutzerprofil anmelden.